Projektierter Neubau Kfw-40-Effizienzhaus!
Impressionen
Preise
- Kaufpreis:
- 521.000,00 €
Kontaktperson
- Name:
- Wilfried Kucera
- Am Stadtgarten 1
- 79312 Emmendingen
- Tel.:
- 07641954990
- E-Mail:
- kucera(at)kern-immobilien(dot)de
Details
- Objektnr. extern:
- 2025-582
- Nutzungsart:
- Wohnen
- Vermarktungsart:
- Kaufen
- Objektart:
- Haus (Doppelhaushälfte)
- Ort:
- 79350 Sexau
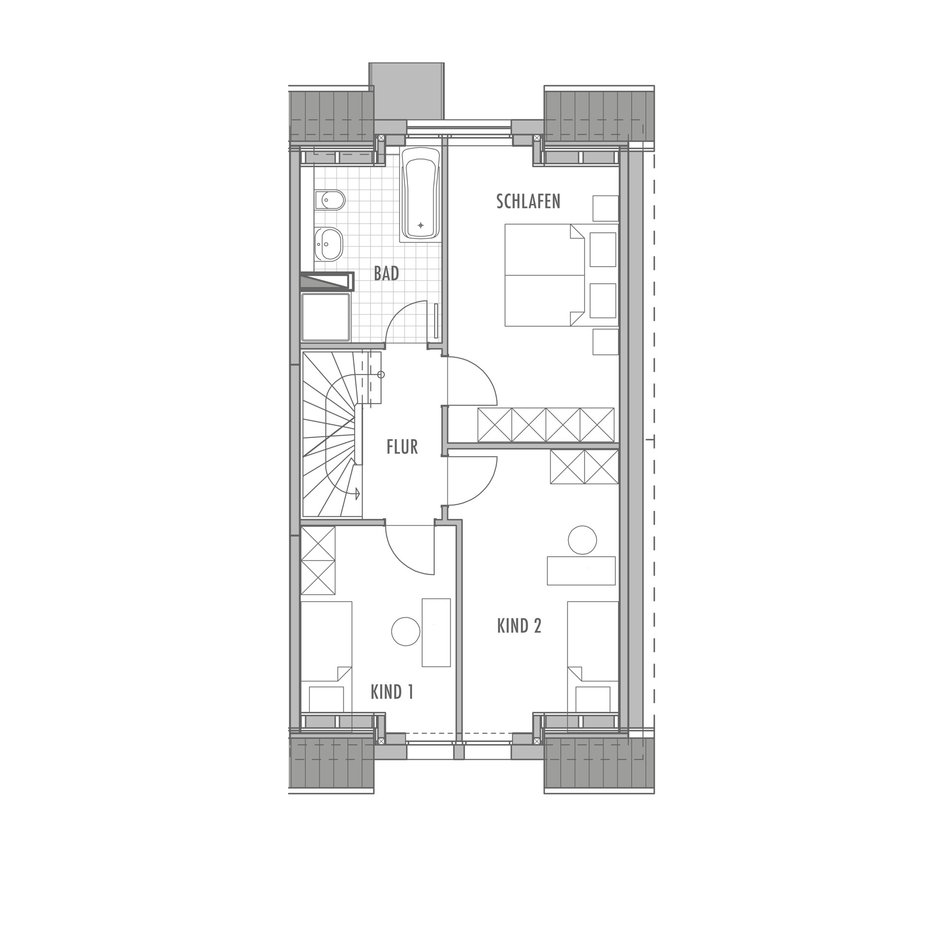
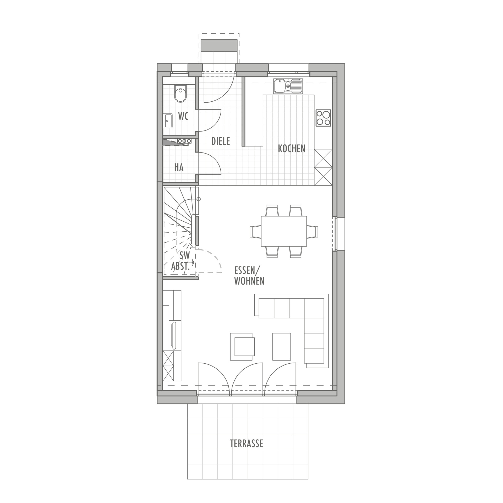
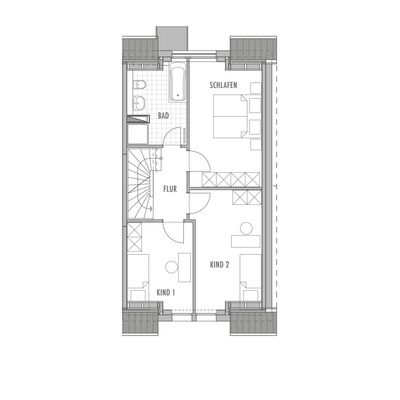
- Wohnfläche:
- 121,37 m²
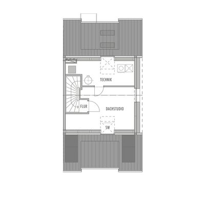
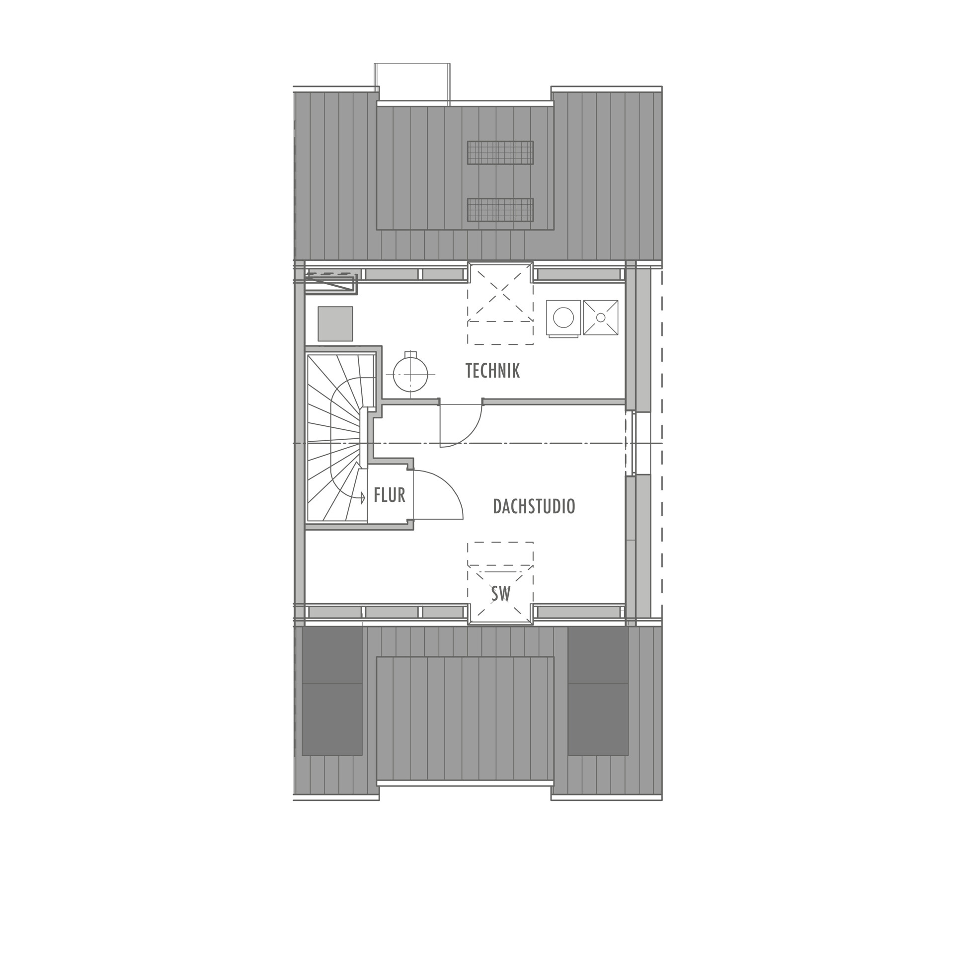
- Nutzfläche:
- 8,59 m²
- Grundstücksfläche:
- 242,00 m²
- Anzahl Zimmer:
- 5.5
- Anzahl Schlafzimmer:
- 4.00
- Anzahl Badezimmer:
- 1.00
- Anzahl Stellplätze:
- 2
- Zustand:
- Erstbezug
- Ausstattungskategorie:
- Gehoben
- Ausstattung:
- Luftwp Fertigparkett Gäste WC
Energiepass
- Art des Ausweises:
- Bedarfsausweis
- Gültig bis:
- 2035-06-19
- Baujahr:
- 2026
- Befeuerung:
- Luftwp
- Wertklasse:
- A+
0 125 250+
16.40 kWh/(m²*a)
- Objektbeschreibung:
- IHR NEUES ZUHAUSE, GESTALTEN SIE NOCH MIT!
Diese projektierte Doppelhaushälfte entsteht in einem gewachsenen Wohngebiet und lässt Ihre Wohnträume wahr werden. Sie verkörpert modernen Wohnkomfort mit einer tollen Ausstattung. Lassen Sie sich von der intelligent durchdachten Raumaufteilung begeistern, die sowohl funktional, als auch großzügig gestaltet ist und jedem Raum eine ganz besondere Atmosphäre verleiht.
Der lichtdurchflutete Innenbereich strahlt eine warme und einladende Freundlichkeit aus, die von der gehobenen Ausstattung unterstrichen wird. Jeden Tag begrüßt Sie Ihr neues Zuhause mit einem Gefühl von Ruhe und Geborgenheit, das nur durch die geschmackvolle und harmonische Gestaltung übertroffen wird.
Diese Immobilie ist mit den neuesten Energiestandards im Kfw-40 Effizienzhausstandard ausgestattet und bietet dadurch entsprechende Fördermöglichkeiten, sprechen Sie uns darauf an! Somit bietet diese Haus nicht nur exzellenten Wohnkomfort, sondern auch eine umweltbewusste und nachhaltige Zukunftsinvestition. Treten Sie ein und erleben Sie, wie jedes Detail hier mit Liebe und Sorgfalt ausgewählt wurde.
Für einen Kellerersatzraum kann als Sonderwunsch auch gesorgt sein: Neben der Doppelhaushälfte ist optional Platz für eine Garage mit Fahrrad- und Abstellraum! Noch wichtig: Die Hausleitungsanschlusskosten sind im Verkaufspreis nicht enthalten - diese belaufen sich auf maximal 10.000 €.
Es ist noch nichts in Stein gemeißelt - planen Sie noch mit und gestalten Ihr eigenes Zuhause nach Ihren Wünschen! - Lage:
- TOLLE LAGE MIT KURZEN WEGEN IN DIE NATUR!
Diese Doppelhaushälfte wird in einem familienfreundlichen Umfeld gebaut. Sexau ist eine charmante Gemeinde und besticht durch ihre ruhige und naturnahe Umgebung, gepaart mit einer guten Anbindung an umliegende Städte.
Sexau punktet auch mit einem hohen Maß an Lebensqualität für Familien. Die Gegend ist sicher und kinderfreundlich, mit zahlreichen Spielplätzen und Grünflächen, die zum Spielen und Entspannen einladen. Kindergärten und Schulen sind gut erreichbar, was den täglichen Schulweg für Kinder einfach und stressfrei gestaltet. Zudem bietet die naturnahe Umgebung viele Möglichkeiten für Freizeitaktivitäten im Freien, wie Wandern und Radfahren.
Die Lage der Immobilie in Sexau gewährleistet eine hervorragende Erreichbarkeit wichtiger Einrichtungen und Städte. Freiburg im Breisgau, eine der größten Städte der Region, ist nur eine kurze Fahrt entfernt und bietet zahlreiche kulturelle Angebote und Bildungsmöglichkeiten. Auch die Anbindung an das öffentliche Verkehrsnetz ist gut, was es leicht macht, das Auto auch mal stehen zu lassen und umweltfreundlich zu reisen.
In Sexau selbst und in den umliegenden Gemeinden gibt es eine Vielzahl von Supermärkten, Geschäften für den täglichen Bedarf sowie Wochenmärkte, auf denen frische regionale Produkte angeboten werden. Darüber hinaus findet man in der Nähe eine Bäckerei und eine Apotheke.
Insgesamt bietet die Lage "der Häuser" in Sexau eine ausgezeichnete Mischung aus ruhigem Familienleben, praktischer Nähe zu Bildungseinrichtungen und exzellenten Einkaufsmöglichkeiten. Sie stellt somit einen idealen Wohnort für Familien dar, die Wert auf ein harmonisches und gut angebundenes Leben legen. www.sexau.de - Ausstattung:
- TIP-TOP-MODERN!
– massives Eichenparkett
– Fliesen (30 × 60 cm) in Küche, Badezimmer, Diele und Gäste-WC
– Gäste-WC
- Kunststofffenster (innen weiß, außen anthrazit) mit Außen-Rollläden
– Zentralheizung, Luft/Wasser-Wärmepumpe mit Photovoltaik
– Terrasse
– zwei Außen-Stellplätze - Sonstiges:
- DAS IST NICHT DIE PASSENDE IMMOBILIE?
Wir helfen Ihnen bei der Suche: www.kern-immobilien.de/login
SIE MÖCHTEN AUCH EINE IMMOBILIE VERKAUFEN?
Finden Sie Ihren Wunschkäufer bei uns unter:
www.kern-immobilien.de/verkaufen/wunschkaeufer-finden/objekte



